C6140主轴箱体加工工艺及夹具设计
摘要: 本设计要求“以质量求发展,以效益求生存”,在保证零件加工质量的前提下,提高了生产率,降低了生产成本,是国内外现代机械加工工艺的主要发展方面方向之一。通过对C6140 主轴箱体零件图的分析及结构形式的了解,从而对主轴箱体进行工艺分析、工艺说明及加工过程的技术要求和精度分析。然后再对主轴箱体的底孔、轴承孔的加工进行夹具设计与精度和误差分析,该工艺与夹具设计结果能应用于生产要求。
Abstract This Paper requires that" with quality beg development, with benefits seek to live on to store ", under the prerequisite of guaranteeing the quality of element processing , have raised productivity and reduced production cost, is one of mainly direction of domestic and international modern machining technology developing. Through knowing and analysis the configuration of the casing part drawing for WH212 gear reducer, so as to analysis the process, make process explanation and analysis the technical requirement and the precision of gear reducer. Then, carry out the design of clamping apparatus and analysis the precision and error for the processing of bearing hole and the base hole of the casing of gear reducer, this technology and the design result of clamping apparatus can apply in production requirement.
关键词: 主轴箱 加工工艺 定位 夹具设计
Key phrase: principal axis , processing technology , Fixed position ,Tongs design
前言
加工工艺及夹具毕业设计是对所学专业知识的一次巩固,是在进行社会实践之前对所学各课程的一次深入的综合性的总复习,也是理论联系实际的训练。
机床夹具已成为机械加工中的重要装备。机床夹具的设计和使用是促进生产发展的重要工艺措施之一。随着我国机械工业生产的不断发展,机床夹具的改进和创造已成为广大机械工人和技术人员在技术革新中的一项重要任务。
课题背景及发展趋势
材料、结构、工艺是产品设计的物质技术基础,一方面,技术制约着设计;另一方面,技术也推动着设计。从设计美学的观点看,技术不仅仅是物质基础还具有其本身的“功能”作用,只要善于应用材料的特性,予以相应的结构形式和适当的加工工艺,就能够创造出实用,美观,经济的产品,即在产品中发挥技术潜在的“功能”。
技术是产品形态发展的先导,新材料,新工艺的出现,必然给产品带来新的结构,新的形态和新的造型风格。材料,加工工艺,结构,产品形象有机地联系在一起的,某个环节的变革,便会引起整个机体的变化。
工业的迅速发展,对产品的品种和生产率提出了愈来愈高的要求,使多品种,对中小批生产作为机械生产的主流,为了适应机械生产的这种发展趋势,必然对
机床夹具提出更高的要求。
夹具的基本结构及夹具设计的内容
按在夹具中的作用,地位结构特点,组成夹具的元件可以划分为以下几类:
(1)定位元件及定位装置;
(2)夹紧元件及定位装置(或者称夹紧机构);
(3)夹具体;
(4)对刀,引导元件及装置(包括刀具导向元件,对刀装置及靠模装置等);
(5)动力装置;
(6)分度,对定装置;
(7)其它的元件及装置(包括夹具各部分相互连接用的以及夹具与机床相连接用的紧固螺钉,销钉,键和各种手柄等);
每个夹具不一定所有的各类元件都具备,如手动夹具就没有动力装置,一般的车床夹具不一定有刀具导向元件及分度装置。反之,按照加工等方面的要求,有些夹具上还需要设有其它装置及机构,例如在有的自动化夹具中必须有上下料装置。
专用夹具的设计主要是对以下几项内容进行设计:(1)定位装置的设计;(2)夹紧装置的设计;(3)对刀-引导装置的设计;(4)夹具体的设计;(5)其他元件及装置的设计。
目录
1 1.1摘要 1
1.2 前言 1
2 箱体加工工艺规程设计 3
2.1零件的分析 3
2.1.1零件的作用 3
2.1.2零件的工艺分析 3
2.2箱体加工的主要问题和工艺过程设计所应采取的相应措施 4
2.2.1确定毛坯的制造形式 4
2.2.2基面的选择 4
2.2.3确定工艺路线 4
2.2.4机械加工余量、工序尺寸及毛坯尺寸的确定 5
2.2.5确定切削用量 6
2.3小结
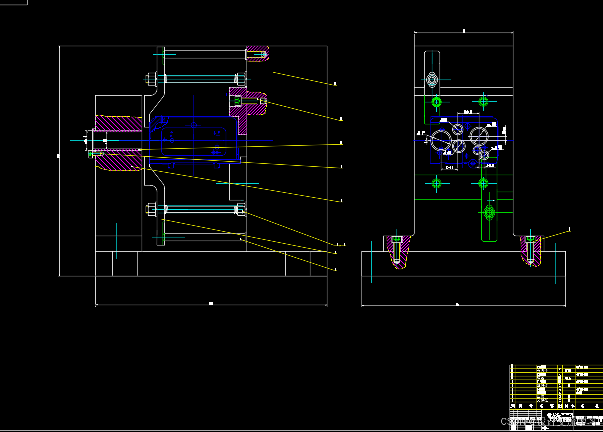
3 专用夹具设计
3.1加工左端平面镗孔夹具设计
3.1.1定位基准的选择
3.1.2切削力的计算与夹紧力分析
3.1.3夹紧元件及动力装置确定
3.1.4镗套、镗套、镗模板及夹具体设计
3.1.5夹具精度分析 27
3.1.6夹具设计及操作的简要说明 27
3.2小结 39
4 结束语 40
参考文献 41
致谢 28
………




最后
以上就是任性烧鹅最近收集整理的关于CA6140车床主轴箱体的设计与工艺分析及镗模(说明书+CAD图纸+工序卡+过程卡)的全部内容,更多相关CA6140车床主轴箱体内容请搜索靠谱客的其他文章。
发表评论 取消回复