学生姓名:
学生学号:
院(系):
年级专业:
指导教师:
年 月
目 录
目录 2
摘 要 4
后钢板弹簧吊耳加工工艺规程设计 5
一、零件的分析 5
(一)零件的作用 5
(二)零件的工艺分析 5
二、工艺规程设计 5
(一) 确定毛坯的制造形式 5
(二)基准的选择 6
1.粗基准的选择 6
2.精基准的选择 6
(三)工艺路线的制定 6
1. 工艺方案一 6
2. 工艺方案二 7
3. 工艺方案的比较与分析 7
(四)机械加工余量、工序尺寸及毛坯尺寸的确定 8
(五)确定切削用量及基本工时(机动时间) 9
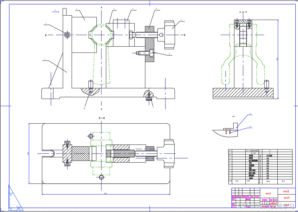
三、夹具设计 18
铣两端面的夹具设计 18
(一)问题提出 18
(二)夹具的设计 18
1.定位基准的选择 18
2.铣削力与夹紧力计算 19
3.定位误差分析 19
4.夹具设计及操作的简要说明 20
四、结论 20
五、心得体会 21
六、参考文献 22
七、致 谢 22
摘 要
本次设计是对后钢板弹簧吊耳零件的加工工艺规程及一些工序的专用夹具设计。后钢板弹簧吊零件的主要加工表面是平面及孔。由加工工艺原则可知,保证平面的加工精度要比保证孔的加工精度容易。所以本设计遵循先面后孔的原则。并将孔与平面的加工明确划分成粗加工和精加工阶段以保证加工精度。基准选择以后钢板弹簧吊耳大外圆端面作为粗基准,以后钢板弹簧吊耳大外圆端面与两个工艺孔作为精基准。主要加工工序安排是先以后钢板弹簧吊耳大外圆端面互为基准加工出端面,再以端面定位加工出工艺孔。在后续工序中除个别工序外均用端面和工艺孔定位加工其他孔与平面。整个加工过程选用不同类型的加工机床。
关键词 后钢板弹簧吊耳,加工工艺,专用夹具
一、零件的分析
(一)零件的作用
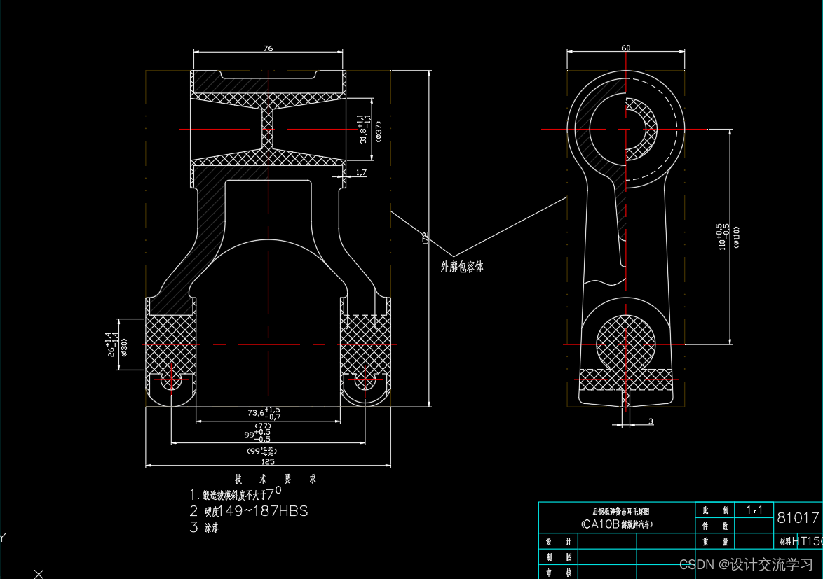
题目给出的零件是CA10B解放牌汽车后钢板弹簧吊耳。后钢板弹簧吊耳的主要作用是载重后,使钢板能够得到延伸,伸展,能有正常的缓冲作用。因此汽车后钢板弹簧吊耳零件的加工质量会影响汽车的工作精度、使用性能和寿命。汽车后钢板弹簧吊耳主要作用是减震功能、阻尼缓冲部分功能、导向功能。两端的卷耳用销子铰接在车架的支架上。这样,通过钢板弹簧将车桥与车身连接起来,起到缓冲、减振、传力的作用。
(二)零件的工艺分析
由后钢板弹簧吊耳零件图知可将其分为两组加工表面。它们相互间有一定的位置要求。现分析如下:
(1)以两外圆端面为主要加工表面的加工面。这一组加工表面包括:两外圆端面的铣削,加工的孔,其中两外圆端面表面粗糙度要求为,的孔表面粗糙度要求为
(2)以孔为主要加工表面的加工面。这一组加工表面包括:2个的孔,2个的孔、2个孔的内外两侧面的铣削,宽度为4的开口槽的铣削,2个在同一中心线上数值为的同轴度要求。其中2个的孔表面粗糙度要求为,2个的孔表面粗糙度要求为,2个的孔的内侧面表面粗糙度要求为,2个的孔外侧面表面粗糙度要求为,宽度为4的开口槽的表面粗糙度要求为。
在两组加工表面之间没有一定的位置要求,先加工哪一组表面都可以,现计划是加工第一组表面,再以第一组为基准加工第二组表面。
…………
…………
…………




最后
以上就是失眠绿茶最近收集整理的关于后钢板弹簧吊耳铣φ37孔两端面[76mm]加工工艺及夹具设计目 录摘 要的全部内容,更多相关后钢板弹簧吊耳铣φ37孔两端面[76mm]加工工艺及夹具设计目内容请搜索靠谱客的其他文章。
发表评论 取消回复