原标题:PLC的内部结构有些啥?
点
.
PLC由CPU、电源、输入电路、输出电路、存储器和通信接口电路几大部分组成如图所示

PLC内部结构
一、CPU
PLC的CPU实际上就是中央处理器,能够进行各种数据的运算和处理,将各种输入信号转化输入寄存器,然后进行逻辑的运算、计时、计数、算数运算、数据的处理和传送、通信联网以及各种操作,对编制的程序进行编译、执行命令,把结果传送到输出端,去响应各种外部设备。
二、存储器
PLC系统中的存储器主要用于存放系统程序、用户程序和工作状态数据。PLC的存储器包括系统程序存储器和用户存储器。

1. 系统程序存储器(ROM)
系统程序存储器(ROM)用以存储系统管理程序、监控程序和系统内部数据,PLC出厂前已将其固化在只读存储器ROM或者PROM中,用户不能更改。
2. 用户存储器(RAM)
RAM包括用户程序存储器(程序区)和数据存储器(数据区)两部分。
RAM存储各种暂存数据、中间结果和用户程序。这类存储器一般有低功率的CMOS-RAM构成,其中的存储内容可以读出并修改。掉电后存储内容丢失,一般由锂电池保持。也就是说用户存储器用来存放用户针对具体控制任务,采用PLC编程语言编写的各种程序。用户存储器根据所选择的存储器的类型不同(可以是RAM、EPROM和EEPROM存储器),用户可以对程序进行修改和增减。用户数据存储器可以用来存放用户所使用的器件的ON/OFF状态和数据等,用户存存储器的大小关系到用户程序容量的大小,是反映PLC性能的重要指标。
PLC为了便于读出、写入和修改,用户程序一般存储在CMOS静态RAM中,用锂电池保持电源的持续供应,以保证掉电后程序不会丢失。
存放在RAM中的工作数据是PLC运行过程中经常变化和经常存取得一些数据,用来适应随机存取的需求,在PLC的工作数据存储器中,设有存入输入输出继电器、辅助继电器、计数器、定时器等逻辑数据存储区,这些器件的状态都是有用户程序的初始值设置和运行情况而确定的。根据需求,部分数据在掉电时用备用电池维持现有状态,这部分在掉电时可保存数据的存储区称为保持数据区。
三、开关量的输入输出接口(I/O)
开关量的输入输出接口是与工业生产现场控制电器相连接的接口。
开关量的输入输出接口采用光电隔离和RC滤波,实现了PLC内部电路和外部电路的电气隔离,并减小了电磁干扰,同时满足工业现场的各类信号的匹配需求。例如,开关量输入接口电路采用光电耦合电路,将限位开关、手动开关、编码器等现场输入设备的控制信号转换成CPU所能接受和处理的数字信号。
1. 输入接口
输入接口是用来接受、采集外部的输入信号,并将这些信号转换成CPU可接受的内部信息。
输入接口电路可采集的信号有三大类,包括有源开关、无源开关和模拟量信号。按钮,接触器触点和行程开关等都是无源开关,而接近开关、晶体管开关电路等属于有源开关,而模拟量信号则是电位器、测速发电机和各类变送器所产生的信号。
2. 输出接口
输出接口电路是PLC与外部负载之间的一个桥梁,能够将PLC向外输出信号转化成可以驱动外部电路的控制信号,以便控制如接触器线圈等电器的通断电。
开关量输出电路包括继电器输出、晶闸管输出和晶体管输出三种输出形式。
继电器输出响应慢,带负载能力大,每个口输出的最大电流为2A,可以接直流或者交流负载。

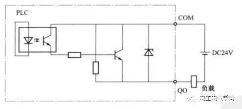
晶体管输出响应快,带负载能力小,每个口输出的电流在几十毫安,可连接直流负载,等效电路如图:

四、电源模块
PLC的电源模块可以将外部的输入电源经过处理后,转化成PLC的CPU、存储器、输入输出接口等内部电路工作所需要的直流电源。许多PLC的直流电源采用直流稳压开关电源,不仅可以提供多种独立的电压供内部使用,而且还可以为外部输入(如传感器)提供电源,PLC根据型号不同,有的采用单项交流电源,一般为220v,有的采用直流电源,一般为24V.返回搜狐,查看更多
责任编辑:
最后
以上就是眼睛大太阳最近收集整理的关于uniapp cross-env不是内部或外部_PLC的内部结构有些啥?的全部内容,更多相关uniapp内容请搜索靠谱客的其他文章。
发表评论 取消回复