使用天正制作户型图或者其他平面图的时候,经常需要计算房间面积,除了使用多段线(PL线)框选然后计算外,还有什么快速的方法呢?我来介绍一下自己的经验。
1、打开天正软件,以天正2014为例,其他版本均可适用。下图为天正2014工作界面。

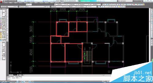
2、打开制作好的cad图纸,以某户型图为例。

3、在该平面图中,存在两个镜像关系的户型,每个户型除了门厅等交通空间之外存在六个使用房间。

4、在天正左侧工具栏依次选择“房间屋顶-查询面积”

5、选择后会跳出“查询面积”对话框,并提示我们选择需要查询面积的房间。

6、将需要查询面积的房间框选,或者直接选择所有图形。选择成功后点击房间内的空白处,便可以将房间面积置入其中。

7、在这里显示的面积是房间净使用面积,编辑角点可以适时改变房间面积的数字。


注意事项:
使用“面积查询”功能所计算出的面积都是房间净使用面积.
相关推荐:
CAD测量距离和面积的五种方法
CAD怎么用快捷键测出规则图形面积和周长?
cad怎样计算图形面积? CAD通过框图计算图形面积的两种方法
最后
以上就是喜悦黑米最近收集整理的关于cad2014中怎么快速计算房间面积?的全部内容,更多相关cad2014中怎么快速计算房间面积内容请搜索靠谱客的其他文章。
本图文内容来源于网友提供,作为学习参考使用,或来自网络收集整理,版权属于原作者所有。
发表评论 取消回复